igus-icon-lupe
igus-icon-lupe
igus-icon-lupe
igus-icon-lupe
1 de 4
igus-icon-arrow-left
igus-icon-arrow-right
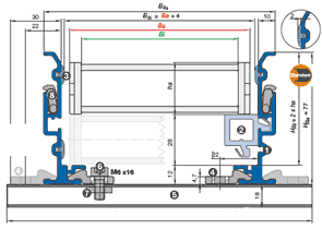
Altura interior [Hi]
21 mm
Diâmetro máx. do condutor
18 mm

Princípio de abertura
Podem ser abertas ao longo do raio interior e exterior
Largura interior [Bi]
30 mm
Raio de curvatura [R]
48 mm
Aplicação
igus-icon-checkSem suporte
Deslizante
Suspenso
Calha articulada
igus-icon-lieferzeitE4.21.030.048.0.ESD3048

.jpg)