Pode realizar aqui a configuração individual do seu Sistema de Calha Articulada. As especificações e alterações introduzidas são registadas na lista de peças que se encontra localizada no fim da página.
Série E333.25 – Calhas articuladas para movimentos em 3 direções
1. Terminais de fixação KMA com pente integrado
2. Desenho patenteado de encaixe
3. Instalação e desmontagem possível em qualquer posição
4. Combinação de diferentes raios de curvatura e direcções de movimento
5. Duplo compartimento, desenho tipo "Easy Chain®" de fácil preenchimento: basta pressionar o cabo pelo raio interior ou exterior
6. Movimentos em 3 eixos para qualquer tipo de máquina
7. Possibilidade de aplicações robóticas
8. Vencedora do prémio if-Design
*O raio de curvatura duplo em calhas articuladas da série E333
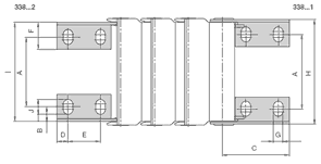
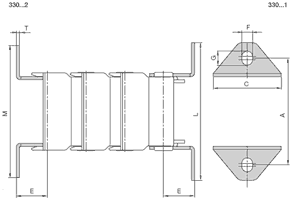
Curso: S
Passo: 14,5 mm
Elos por m: 69 (1000,,5 mm)
Medida E: 10 mm
Ba: 34 mm
Comprimento da calha: S/2 + K